APARTAMENT 3 CAMERE 2 BAI CU CURTE PROPRIE DUMBRAVITA SELGROS
Descriere apartament
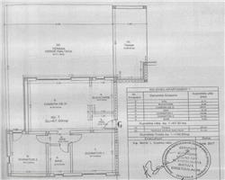
LANDMARK ofera spre vanzare apartament cu curte proprie ( 95 mp), cu 3 camere, 2 bai, confort 1, decomandat in Dumbravita zona Selgros, strada RODIEI, situat la parterul unui bloc de 2 etaje (6 apartamente in total) .
Apartamentul are o suprafata utila de 67.5 mp si dispune de camera de zi si bucatarie mobilata si utilata cu hota, aragaz si cuptor, cu posibilitate de inchidere, 2 dormitoare (unul mobilat) ,2 bai, 1 balcon de 10 mp, hol mobilat , curte proprie si un loc de parcare. Se vinde complet amenajat, partial mobilat si utilat , iar incalzirea se realizeaza cu incalzire in pardoseala. Finisajele sunt premium, tamplarie termopan pvc cu rulouri electrice, aer conditionat, parchet laminat in camere, gresie in cele 2 bai.
Apartamentul este ca si nou, s-a locuit in el foarte putin, curtea este amenajata cu statie de incarcare pentru masina electrica, loc pentru mobilier de gradina si grill, pajiste si un loc separat de depozitare si pastrare biciclete, masina de tuns iarba sau carucior.
Singurul vecin cu perete comun este doar cel deasupra, la parter fiind 2 apartamente despartite de casa scarii.
Imobilul se afla in apropiere de zona comerciala, supermarket, trafic pietonal, intersectie circulata, hotel, parc, scoala/gradinita. Pretul este de 172.000 euro usor negociabil/ Comision agentie 3% din pretul de vanzare.ID intern: 210591.
ID Oferta: 210591
| Pret Vanzare: | € 172,000 |
|---|---|
| Zona: | ARADULUI |
| Strada: | RODIEI DUM |
| Tip Imobil: | Bloc |
| Numar Camere: | 3 |
| Compartimentare: | decomandat |
| Confort: | 1 |
| Etaj: | parter/2 |
| Nr. etaje imobil: | 2 |
| Suprafata utila: | 68 mp |
| Numar Bai: | 1 |
| Numar Balcoane: | 1 |
| Parcare: | In curte |
| An Constructie: | 2017 |
| Destinatie: | Locuinta |
| Vecinatati: | Hotel, Intersectie circulata, Parc, Scoala/gradinita, Supermarket, Trafic Pietonal, Zona comerciala |
| Numar de afisari: | 15 |
Caracteristici generale
- Structura: Caramida
- Acces: Fata
- Orientare: Est-Vest
- Vedere: Mixta
- Vecinatati: Hotel, Intersectie circulata, Parc, Scoala/gradinita, Supermarket, Trafic Pietonal, Zona comerciala
- Interfon: Da
- Lift: Nu
- Servicii: administrare
- Strazi: Asfaltate
- Utilitati: Apa, Canalizare, Curent, Gaz
- Izolatii termice: Exterior
- Stadiu: Finisat
- Balcoane: Nu este inchis
- Ferestre: Termopan
- Pereti: Faianta, Lavabil
- Pardoseli: Gresie, Parchet laminat
- Incalzire: Incalzire in pardoseala
- Calorifere: Fara
- Electrocasnice: Aragaz, Frigider, Masina de spalat rufe, Masina de spalat vase
- Geam baie: Da
- Usi: Usa interioare noi, Usa intrare pvc
- Mobilat: Mobilat
- Bucatarie: Deschisa
- Acces internet: Fibra optica



























