DUPLEX spatios mobilat cu garaj Dumbravita intre Ion Creanga si Mures
Descriere casa vila
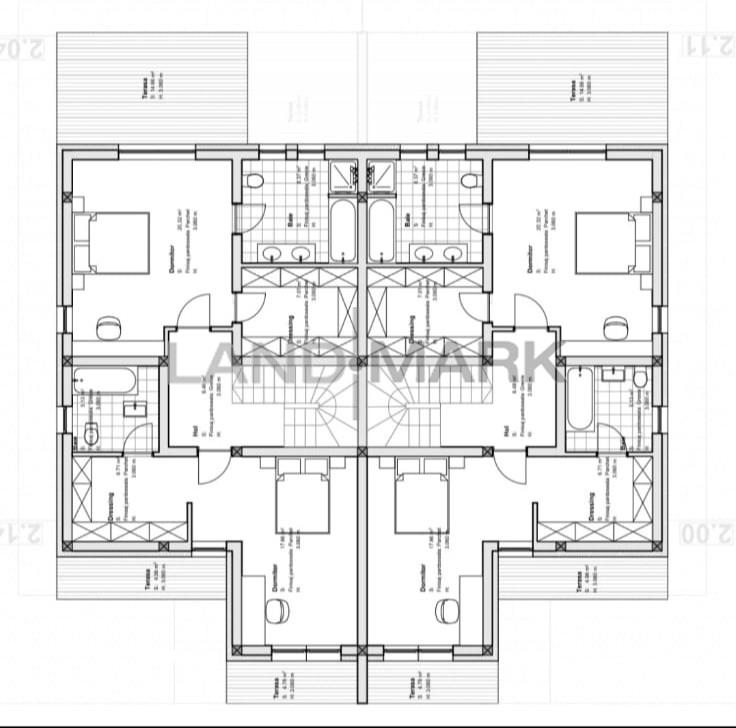
LANDMARK ofera spre vanzare casa duplex (ambele unitati disponibile - pretul este pentru 1 unitate) in Dumbravita, intre str Mures si Ion Creanga spre Tudor Vladimirescu, fiind compartimentat in felul urmator:
parter: hol acces, dormitor/birou, zona living + dining si bucatarie deschisa cu iesire pe terasa si 1 baie.
etaj: hol acces, 2 dormitoare spatioase, fiecare dressing si baie proprie.
Casa este mobilata si utilata, necesita mici ajustari ca si finisaje , inaltimea camerelor este 2.85 m.
Terasele sunt construite pe fundatie de 1.5 m, gard cu fundatie de 1 m, ,izolatia casei este din polistiren de 15 si 20 cm, plansee beton armat de 45 cm. Alte amenajari: tamplarie termopan tripan, terasa realizata din bitum si hidroizolatie, beneficiaza de toate utilitatile, iar acoperisul permite montarea panourilor fotovoltaice.
Suprafata utila a casei este de 159 mp + 18 mp garaj iar terenul are o suprafata totala de 315 mp . Imobilul este locuit, necesita finisaje exterioare, se vinde in stadiuyl actual si se afla in apropiere de autobuz, zona comerciala, supermarket. Pretul este de 265.000 euro usor negociabil. Comision agentie 2% din pretul de vanzare.ID intern: 210355.
ID Oferta: 210355
| Pret Vanzare: | € 265,000 |
|---|---|
| Zona: | DUMBRAVITA |
| An Constructie: | 2023 |
| Tip casa: | Duplex |
| Regim Inaltime: | P+1E |
| Numar Camere: | 4 |
| Dormitoare: | 3 |
| Numar Bai: | 3 |
| Suprafata utila: | 159 mp |
| Suprafata Teren: | 315 mp |
| Front: | 10 ml / nr fronturi 2 |
| Strazi: | Pietruite |
| Parcare: | Garaj |
| Destinatie: | Locuinta/Birou |
| Vecinatati: | Autobuz, Supermarket, Zona comerciala |
| Numar de afisari: | 650 |
Caracteristici generale
- Access: Masina
- Structura: Beton
- Materiale: Beton Armat, Caramida Porotherm
- Plansee: Beton Armat
- Acoperis: Terasa
- Izolatii termice: Exterior
- Stadiu: Finisat
- Incalzire: Incalzire pardoseala
- Ferestre: Term. PVC
- Pereti: Faianta, Lavabil
- Podele: Gresie, Parchet
- Calorifere: Fara
- Curte: Pavata
- Mobilat: Mobilat
- Bucatarie: Deschisa, Mobilata, Utilata
- Alte Dotari: Aer Conditionat, Aragaz, Dressing, Frigider, Masina vase, Scara interioara, WC Serviciu
- Utilitati: Apa, Canalizare, Curent, Gaz





































