Oferta a fost retrasa
DUPLEX DESIGN MINIMALIST CALITATE PREMIUM ZONA LIPOVEI INTRE CASE
Descriere casa vila
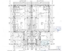
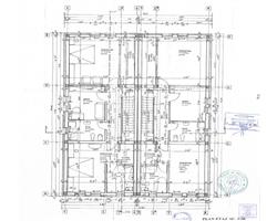
LANDMARK ofera spre vanzare unitate in casa duplex premium, stil minimalist, acoperis tip terasa, in zona LIPOVEI, intre case, fiind compartimentat in felul urmator:
parter: hol acces ( cu loc pentru dressing/dulap), baie de serviciu, zona mare deschisa formata din living + dining + bucatarie deschisa cu iesire pe terasa.
etaj: hol acces, baie, 2 dormitoare si dormitor matrimonial cu baie proprie.
Suprafata utila a casei este de 140 mp iar terenul are o suprafata totala de 256 mp. Curtea se preda amenajata cu gazon si pavaj, curte libera in spate de 8.5 m x 8 m latime. Imobilul este finisat, amenajarile sunt premium, pereti dublii despartitori, tampalarie tripan Rehau, rulouri electrice,spoturi, izolatie exterioara cu vata bazaltica de 15 cm, acoperis bine executat, hidroizolatie + izolatie ( exista poze din fiecare etapa a constructiei). Casa se afla intr-io zona foarte linistita, in apropiere se gasesc atat supermarketuri, restaurante, scoli, gradinite si parc.. Pretul este de 319.000 euro usor negociabil. Comision agentie 2% din pretul de vanzare. ID intern: 209263.
ID Oferta: 209263
| Pret Vanzare: | € 319,000 |
|---|---|
| Zona: | LIPOVEI |
| An Constructie: | 2024 |
| Tip casa: | Duplex |
| Regim Inaltime: | P+1E |
| Numar Camere: | 4 |
| Dormitoare: | 3 |
| Numar Bai: | 3 |
| Suprafata utila: | 140 mp |
| Suprafata Teren: | 256 mp |
| Front: | 9 ml / nr fronturi 1 |
| Strazi: | Asfaltate |
| Parcare: | In curte |
| Destinatie: | Locuinta |
| Vecinatati: | Autobuz, Banca, Benzinarie, Fastfood, Parc, Piata, Restaurant/pub, Scoala/gradinita, Supermarket, Zona comerciala |
| Numar de afisari: | 18173 |
Caracteristici generale
- Access: Masina
- Structura: Beton
- Materiale: Beton Armat, Caramida Porotherm
- Plansee: Beton Armat
- Acoperis: Terasa
- Izolatii termice: Exterior
- Stadiu: Finisat
- Incalzire: Incalzire pardoseala
- Ferestre: Term. PVC
- Pereti: Faianta, Lavabil
- Podele: Gresie, Parchet laminat
- Calorifere: Fara
- Curte: Amenajata, Livada, Pavata
- Mobilat: Nemobilat
- Bucatarie: Deschisa
- Alte Dotari: Rulouri, Scara interioara, Sistem Alarma, Spoturi, WC Serviciu
- Utilitati: Apa, Canalizare, Curent, Gaz

































