COMISION 0% Unitate in Duplex, 4 camere, 3 bai Torontalului Vox
Descriere casa vila
LANDMARK ofera spre vanzare, COMISION 0%, casa duplex, TERMEN DE PREDARE MAI 2027, in zona TORONTAL - VOX, str Rubinstein,fiind compartimentat astfel:
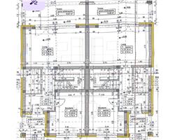
parter: hol acces, bucatarie inchisa,camara, baie, camera de zi cu iesire pe terasa;
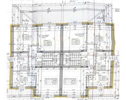
etaj: hol acces, dormitor matrimonial cu baie proprie, 2 dormitoare, baie cu vana
Finisaje si utilitati: incalzire in pardoseala fie prin centrala proprie pe gaz, fie pompa de caldura si cu panouri fotovoltaice. Finisajele vor fi premium si se discuta cu viitorul proprietar.
Suprafata utila a casei este de 110 mp iar terenul are o suprafata totala de 365 mp . Proiectul este in faza de autorizatie, se vinde din acest stadiu, termen finisare si predare maxim Mai 2027. si se afla in apropiere de autobuz, zona comerciala, supermarket, fastfood, intersectie circulata, benzinarie, hotel. Pretul este de 285.000 euro negociabil.ID intern: 210766.
ID Oferta: 210766
| Pret Vanzare: | € 285,000 |
|---|---|
| Zona: | TORONTAL |
| Strada: | RUBINSTEIN ARTHUR |
| An Constructie: | 2026 |
| Tip casa: | Duplex |
| Regim Inaltime: | P+1E |
| Numar Camere: | 4 |
| Dormitoare: | 3 |
| Numar Bai: | 3 |
| Suprafata utila: | 110 mp |
| Suprafata Teren: | 365 mp |
| Front: | 9 ml / nr fronturi 1 |
| Strazi: | Asfaltate |
| Parcare: | In curte |
| Destinatie: | Locuinta |
| Vecinatati: | Autobuz, Benzinarie, Fastfood, Hotel, Intersectie circulata, Supermarket, Zona comerciala |
| Numar de afisari: | 7 |
Caracteristici generale
- Access: Masina
- Structura: Beton
- Materiale: Beton Armat, Caramida Porotherm
- Plansee: Beton Armat
- Acoperis: Tigla
- Izolatii termice: Exterior
- Stadiu: La rosu
- Incalzire: Incalzire pardoseala
- Ferestre: Term. PVC
- Pereti: Faianta, Lavabil
- Podele: Gresie, Parchet laminat
- Calorifere: Fara
- Curte: Amenajata, Pavata
- Mobilat: Nemobilat
- Bucatarie: Inchisa
- Alte Dotari: WC Serviciu
- Utilitati: Apa, Canalizare, Curent, Gaz



















