Oferta a fost vanduta/inchiriata
Oferta a fost retrasa
UNITATE IN DUPLEX P+ ET 1+ M, 4 camere, 3 bai in Timisoara Sud
Descriere casa vila
LANDMARK ofera spre vanzare UNITATE IN DUPLEX parter + et 1 + M, strada retrasa, oferind intimitate si liniste, Timisoara Sud, in aproprierea strazii Emil Zole.
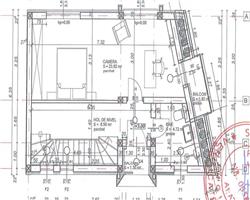
Este compartmentat in felul urmator:
parter: hol acces, baie de servici, bucatarie deschisa, living cu iesire pe terasa si o platforma pentru parcare unde se poate amenaja un carport;
etaj: hol acces, 1 dormitor mare cu balcon, baie cu dus;
mansarda: hol acces, baie cu vana, 2 dormitoare (inaltime 2.55 m) cu ferestre velux din lemn si un balcon;
Finisajele si lucrarile atat in interior cat si in exterior sunt de calitate superioara, peretele despartitor intre unitati este dublu + izolatie de 10 cm, acoperis izolat cu spuma de 18 ncm + tigla Ceramica, curent trifazic, incalzire in pardoseala, iar curtea este pavata si amenajata cu aspensoare, pajiste, plante ornamentale.
Suprafata utila a casei este de 120 mp iar terenul are o suprafata totala de 228 mp . Imobilul este finisat si se afla in apropiere de autobuz, zona comerciala, banca, supermarket, fastfood, benzinarie, piata, hotel, parc, mall, scoala/gradinita. Pretul este de 230000 euro. Comision agentie standard. ID intern: 210680.
ID Oferta: 210680
| Pret Vanzare: | € 230,000 |
|---|---|
| Zona: | |
| An Constructie: | 2025 |
| Tip casa: | Ansamblu Rezidential |
| Regim Inaltime: | P+1E+M |
| Numar Camere: | 4 |
| Dormitoare: | 3 |
| Numar Bai: | 3 |
| Suprafata utila: | 120 mp |
| Suprafata Teren: | 228 mp |
| Front: | 9 ml / nr fronturi 1 |
| Strazi: | Asfaltate |
| Parcare: | Posibilitate in curte |
| Destinatie: | Locuinta |
| Vecinatati: | Autobuz, Banca, Benzinarie, Fastfood, Hotel, Mall, Parc, Piata, Scoala/gradinita, Supermarket, Zona comerciala |
| Numar de afisari: | 834 |
Caracteristici generale
- Access: Masina
- Structura: Beton
- Materiale: Beton Armat, Caramida Porotherm
- Plansee: Beton Armat
- Acoperis: Tigla
- Izolatii termice: Exterior
- Stadiu: Finisat
- Incalzire: Incalzire pardoseala
- Ferestre: Term. PVC
- Pereti: Faianta, Lavabil
- Podele: Gresie, Parchet laminat
- Calorifere: Fara
- Curte: Amenajata, Pavata
- Mobilat: Nemobilat
- Bucatarie: Deschisa
- Alte Dotari: Aer Conditionat, Scara interioara, Spoturi, Telecomanda garaj, WC Serviciu
- Utilitati: Apa, Canalizare, Curent, Curent trifazic, Gaz









































