Cladire de inchiriat Timisoara, semicentral, parcare proprie
Descriere spatiu comercial
LANDMARK propune spre inchiriere un spațiu elegant și funcțional, clădire multifunctionala modernă cu acces facil la mijloace de transport si punctele cheie din oraș. Locația excelentă și facilitățile fac din acest imobil o alegere ideală pentru diverse activități, fie că este vorba de clinici medicale, centre educaționale sau birouri.
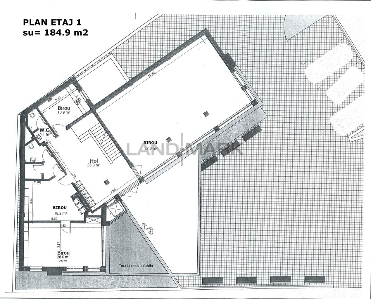
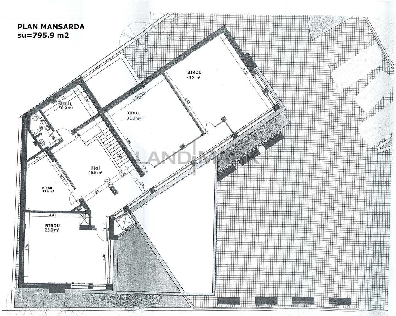
✔ Suprafață flexibilă și optimizată – Spații open-space, săli de ședință și zone de relaxare, perfect adaptate pentru echipe dinamice. Clădirea este structurată pe 4 niveluri, oferind compartimentare flexibilă, ideală pentru diverse domenii de activitate.
✔ Facilități premium – Dotată cu lift pentru persoane, sistem de încălzire pe gaz separat pe fiecare etaj, climatizare completă, sistem antiincendiu cu hidranti și autorizare ISU.
✔ Parcare generoasă – Curtea pavată, cu acces auto automatizat, oferă spațiu pentru 10-12 mașini, asigurând confortul și siguranța angajaților și vizitatorilor.
Aceasta este șansa perfectă de a investi într-o clădire care combină designul modern cu funcționalitatea într-o zonă dinamică și accesibilă.
Pretul chiriei este de 7500 Euro / luna . ID intern: 210221
ID Oferta: 210504
| Pret Inchiriere: | € 7,500 |
|---|---|
| Zona: | COMPLEX |
| Tip Spatiu: | Cladire birouri |
| Dispunere: | Compartimentat, Open space |
| Suprafata utila: | 800 mp |
| Numar Incaperi: | 14 |
| Numar Bai: | 4 |
| Parcare: | Posibilitate in curte |
| Disponibilitate: | DISPONIBIL |
| Numar de afisari: | 1179 |
Caracteristici generale
- Stadiu: Finisat
- Structura: Beton
- Materiale: Caramida Porotherm
- Ferestre: Term. aluminiu
- Pereti: Lavabil
- Podele: Gresie, Parchet
- Incalzire: Centrala Termica
- Bucatarie: Chicineta
- Servicii: administrare
- Dotari: Fatada de sticla, Interfon, Internet, Telefon
- Utilitati: Apa, Cablu TV, Canalizare, Curent, Gaz
- Strazi: Asfaltate











































