Spatiu comercial SAD 135 mp , parcare privata, zona Complex
Descriere spatiu comercial
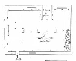
LANDMARK ofera spre vanzare spatiu comercial in zona Complexului Studentesc, intr-o pozitie usor de reperat, strada circulata cu acces facil la mijloace de transport. Spatiul are o suprafata utila de 135 mp open space, cu 2 intrari stradale , 3 bai si acces prin spate, permitand compartimentarea si adaptarea la diverse activitati comerciale, servicii, birouri , cabinete medicale, etc. Spatiul este complet finisat, totul este nou, tamplarie exterioara cu geamuri termopan , pardoseli din gresie, corpuri de iluminat, incalzire cu centrala centrala proprie pe gaz , 2 unitati de climatizare. Pretul de vanzare este de 250.000 euro + TVA . In pretul de vanzare sunt incluse si doua locuri de parcare privata. ID intern: 210572
ID Oferta: 210572
| Pret Vanzare: | € 250,000 +TVA |
|---|---|
| Zona: | COMPLEX |
| Tip Spatiu: | Spatii comerciale |
| Dispunere: | Open space |
| Suprafata utila: | 135 mp |
| Numar Incaperi: | 1 |
| Numar Bai: | 1 |
| Parcare: | Posibilitate in curte |
| Disponibilitate: | disponibil |
| Numar de afisari: | 20377 |
Caracteristici generale
- Structura: Beton
- Materiale: Caramida Porotherm
- Ferestre: Term. PVC
- Servicii: administrare





























