Spatiu SAD de vanzare, Bdul Liviu Rebreanu, COMISION 0
Descriere spatiu comercial
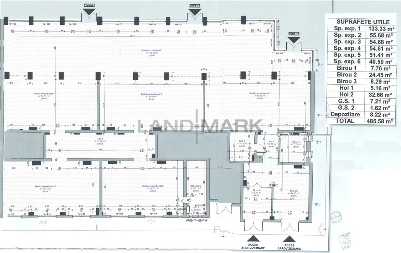
LANDMARK ofera spre vanzare un spatiu comercial situat in zona Sagului - Rebreanu, artera intens circulata, vizibilitate excelenta. Spatiul are o suprafata utila de 485 mp , vitrine generoase cu 3 accese stradale ( se poate imparti in 3 spatii distincte), rampa de aprovizionare marfa in spate . Este amenajat cu vitrine cu greamuri termopan, pardoseli din gresie integral. Pretl de vanzare este de 750.000 Euro ( 1550 Euro / mp ) + TVA sau taxare inversa. COMISOIN 0% ID intern: 210891
ID Oferta: 210891
| Pret Vanzare: | € 750,000 +TVA |
|---|---|
| Pret/mp: | € 1546 |
| Zona: | SAGULUI |
| Strada: | REBREANU 1-19, 2-10 |
| Tip Spatiu: | Spatii comerciale |
| Dispunere: | Open space |
| Suprafata utila: | 485 mp |
| Numar Incaperi: | 2 |
| Numar Bai: | 2 |
| Parcare: | Posibilitate in strada |
| Disponibilitate: | DISPONIBIL |
| Numar de afisari: | 386 |
Caracteristici generale
- Structura: BCA
- Materiale: Caramida Porotherm
- Servicii: administrare





















