Spatiu industrial 560 mp , parcare, rampa, Timisoara Sagului
Descriere hale
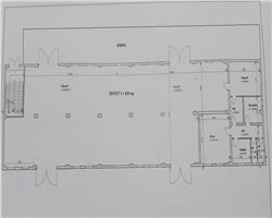
LANDMARK ofera spre inchiriere hala industriala situata in zona Sagului, avand o suprafata utila aproximativ 560 mp. Este compusa din zona productie / depozitare cu rampa, birouri vestiar si grupuri sanitare. Dispune de curent trifazat, incalzire cu calorifere atat in zona de productie cat si zona de birouri, iluminat natural. hala este amplasata pe un teren in suprafata de 2.500 mp platforma betonata, cu acc TIR si parcari auto. Pretul chiriei este de 2500 euro / luna . ID intern: 210345
ID Oferta: 210345
| Pret Inchiriere: | € 2,500 |
|---|---|
| Zona: | |
| Suprafata utila: | 560 mp |
| Suprafata totala: | 560 mp |
| Numar Bai: | 2 |
| Etaje: | 1 |
| Parcare: | Posibilitate in curte |
| Tip Spatiu: | Constructie separata |
| Dispunere: | Open space |
| An Constructie: | 1980 |
| Disponibilitate: | DISPONIBIL |
| Numar de afisari: | 409 |
Caracteristici generale hala
- Destinatie: Depozit, Fabrica, Productie
- Structura: Beton
- Materiale: Caramida Porotherm
- Plansee: Beton Armat
- Podele: Gresie
- Incalzire: Centrala Termica
- Dotari Hala: Lumina naturala , Platforma betonata, Rampa de incarcare
- Servicii: administrare
Caracteristici generale birouri
- Plansee: Beton Armat
- Pardoseli: Gresie
- Incalzire: Centrala Termica















