Oferta a fost retrasa
Hala industriala Timisoara,1100 mp,E xterior NORD
Descriere hala
LANDMARK propune spre vânzare hala industriala amplasata într-un complex modern de hale, situat în zona Calea Aradului - Exterior Nord, cu acces facil la Centura Timișoarei și Autostrada A1.
Construcția este nouă, realizată din plăci prefabricate din beton la exterior si pereti separatori din panouri sandwich pe interior, cu rezistenta la foc.
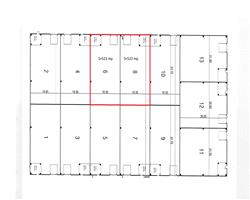
Hala este compusa din doua unitati lipite avand o suprafata utila la sol de 523 mp care pot sa comunice intre ele in caz de nevoie.
Fiecare unitate include o hală destinată producției sau depozitării cu CF separat, având o înălțime liberă sub grindă de 6,5 m, și o zonă de birouri desfășurată pe Parter + Mezanin, in suprafață utila desfasurata de 60 mp.
Spațiile beneficiază de facilități esențiale, cum ar fi:
Acces pentru TIR, drumuri de incinta betonate pt trafic greu si iluminat public
Supraveghere video pe exterior
Uși de tip Drive-In (dimensiuni 4x4,5 m)
Iluminat natural , cu 2 trape electrice pe fiecare unitate
Racorduri pentru apă, canalizare, gaze și curent electric.
Prețul de vânzare pentru cele doua unitati este de 750.000 euro + TVA ( sau taxare inversa cu TVA 0)
Pretabil si ca investitie imobiliara, cu un potential de randament estimat de 7 % / an.
Disponibil imediat ID intern 210560
ID Oferta: 210560
| Pret Vanzare: | € 750,000 +TVA |
|---|---|
| Zona: | TORONTAL |
| Suprafata utila: | 1100 mp |
| Suprafata totala: | 1100 mp |
| Numar Bai: | 1 |
| Etaje: | 1 |
| Parcare: | Posibilitate in curte |
| Tip Spatiu: | Complex de hale |
| Dispunere: | Open space |
| An Constructie: | 2024 |
| Disponibilitate: | DISPONIBIL |
| Numar de afisari: | 1461 |
Caracteristici generale hala
- Structura: Beton
- Materiale: Beton Armat
- Access: Auto, Marfa, Pietonal
- Servicii: administrare



















